Components>Trim>Insulated Metal Panel Trim>Horizontal Wall Extrusions

Length – 4″
Used to align multiple pieces of base, head and stack joint extrusions
Coupler

Splice cap is unpainted and can be painted with touch-up paint when required
Splice Cap
| DIM “A” | Panel Thickness | Length |
|---|---|---|
| 1 15/32″ | 2″ | 6″ |
| 1 31/32″ | 2 1/2″ | 6″ |
| 2 15/32″ | 3″ | 6″ |

Sill Extrusion
| DIM “A” | Panel Thickness | Length |
|---|---|---|
| 2 5/16″ | 2″, 2 1/2″ and 3″ | 20′-0″ |
| 4 5/16″ | 4″ | 20′-0″ |

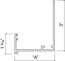
Base/Head Extrusion
| DIM “A” | Panel Thickness | Length |
|---|---|---|
| 2 3/8″ | 2″ | 20′-0″ |
| 2 7/8″ | 2 1/2″ | 20′-0″ |
| 3 3/8″ | 3″ | 20′-0″ |
| 4 3/8″ | 4″ | 20′-0″ |

Stack Joint Extrusion
| DIM “A” | Panel Thickness | Length |
|---|---|---|
| 2 3/8″ | 2″ | 20′-0″ |
| 2 7/8″ | 2 1/2″ | 20′-0″ |
| 3 3/8″ | 3″ | 20′-0″ |
| 4 3/8″ | 4″ | 20′-0″ |

Jamb Extrusion – Male
| Panel Thickness | Length |
|---|---|
| 2″, 2 1/2″ and 3″ | 20′-0″ |

Jamb Extrusion – Female
| DIM “A” | Panel Thickness | Length |
|---|---|---|
| 2 1/16″ | 2″ | 20′-0″ |
| 2 9/16″ | 2 1/2″ | 20′-0″ |
| 3 1/16″ | 3″ | 20′-0″ |
| 4 1/16″ | 4″ | 20′-0″ |

Vertical “H” Joint Extrusion – Male
| Panel Type | DIM “A” | Panel Thickness | Length |
|---|---|---|---|
| Concealed Fastener | 1 1/2″ | 2″, 2 1/2″ and 3″ | 20′-0″ |
| 7.2 | 2″ | 2 1/2″ and 3″ | 20′-0″ |

Vertical “H” Joint Extrusion – Female
| Panel Type | Panel Thickness | Length |
|---|---|---|
| Concealed Fastener | 2″ and 2 1/2″ | 20′-0″ |
| 7.2 | 2 1/2″ | 20′-0″ |
| Concealed Fastener | 3″ | 20′-0″ |
| 7.2 | 3″ | 20′-0″ |

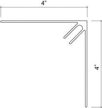
Outside Corner Extrusion – Male
| Panel Thickness | Length |
|---|---|
| 2″, 2 1/2″ and 3″ | 20′-0″ |
| 4″ | 20′-0″ |

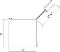
Outside Corner Extrusion – Female
| Panel Thickness | Length |
|---|---|
| 2″ | 20′-0″ |
| 2 1/2″ | 20′-0″ |
| 3″ | 20′-0″ |
| 4″ | 20′-0″ |

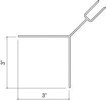
Inside Corner Extrusion – Male
| Panel Thickness | Length |
| 2″ | 20′-0″ |

Inside Corner Extrusion – Female
| DIM “A” | Panel Thickness | Length |
| 2 11/16″ | 2″ | 20′-0″ |

Module Clip Extrusion
| Dim “A” | Panel Thickness | Length |
|---|---|---|
| 1 5/8″ | 2″ | 20′-0″ |
| 2 1/8″ | 2 1/2″ | 20′-0″ |
| 2 5/8″ | 3″ | 20′-0″ |
| 3 5/8″ | 4″ | 20′-0″ |
